Карта
Поиск
Обратная связь
Помощь
План
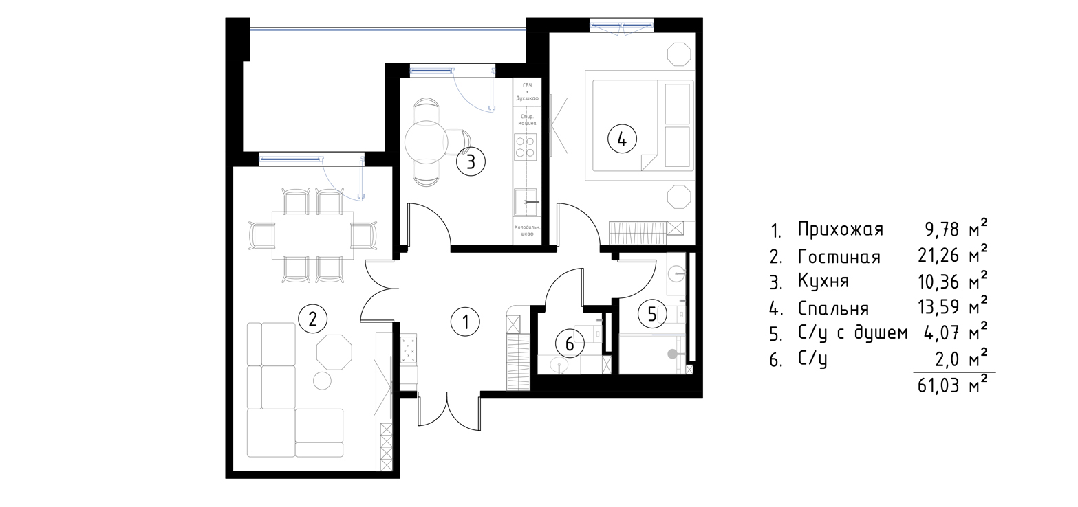
ЖК Infinity квартира 61.03 м 2 Прихожая 9,78 м2
Информация
Поделиться
Тур режим
Полный экран
Режимы просмотра
План